レクシア宮崎大橋アクアテラス 202
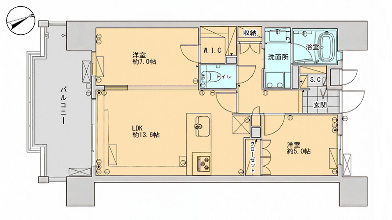
おすすめポイント宮崎市内を雄大に流れる大淀川。その穏やかな水面を渡る風と豊かな自然を身近に感じる場所に、「レクシア宮崎大橋アクアテラス」は佇んでいます。都市の利便性と自然の潤いを兼ね備えたこの地で、今回ご紹介するのは南向きの開口部を備えた2階の2LDKです。 リビングの大きな窓からは、やわらかな自然光がたっぷりと降り注ぎます。視線の先には大淀川の流れと堤防の緑が広がり、前面に高い建物がないため2階でも十分な開放感があります。高層階とは異なり、生活の目線に近い距離で水面の揺らぎや木々の息吹を感じられるのが、このお部屋ならではの魅力です。 暮らしの変化に柔軟に対応できる間取りも特長です。リビングに隣接する洋室は引き戸で仕切られており、開け放てば開放的な一体空間として、閉じれば独立した個室として使えます。また、空間を見渡せる対面式キッチンや、無駄のない生活動線が、日々の暮らしの快適性を高めてくれます。 目の前の大淀川沿いには遊歩道が整備され、ジョギングや散歩など、自然と触れ合う時間が日常に溶け込みます。共用部は落ち着いたデザインのエントランスやラウンジが品格を漂わせ、オートロックや宅配ボックスなど、安心と利便性を支える設備もしっかりと整っています。 室内はクロス張替済みで、フローリングや建具も良好なコンディションが保たれています。大規模なリフォームなしでそのまま入居できるのは大きなメリットです。人造大理石天板で食洗機付きのキッチン、収納力のある三面鏡洗面台、ゆとりある浴室、自動開閉機能付きトイレなど、細部まで実用性と快適性が整えられています。
- 価格
- 1,890万円
- 間取り
- 2LDK
- 専有面積
- 内芯 58.03㎡
- 物件種目
- マンション
- 築年月
- 2015年2月下旬(築11年2ヶ月)
- 建物構造
- 鉄筋コンクリート
- 階建/階
- 13階建/2階
- 総戸数
- 58戸
- バルコニー
- あり 14.3㎡
- 交通
JR日豊本線(佐伯~鹿児島中央) 宮崎駅 大橋3丁目 バス9分 徒歩5分
- 所在地
- 管理費等
- 8,400円
- 敷金/保証金
- なし /
- 平米単価
- 修繕積立金
- 8,600円
- 借地期間
- 地代(月額)
- 権利金
- その他一時金
- 維持費等
- 間取り(内訳)
- 建物名・部屋番号
- レクシア宮崎大橋アクアテラス 202
- 駐車場
- 空きあり 500円/月
- 小学校
- 宮崎市立小戸小学校(距離:990m)
- 中学校
- 宮崎市立宮崎西中学校(距離:1810m)
- 土地権利
- 所有権
- 敷地面積
- 管理形態・管理員の勤務形態
- 管理形態:全部委託
管理方式:日勤
管理会社:
管理組合有:あり
- 国土法届出
- 設備
- 排水下水 防犯カメラ エレベーター 駐輪場 分譲タイプ 外観タイル張り 宅配BOX 敷地内ごみ置き場 水道公営 都市ガス 専用トイレ バス・トイレ別 温水洗浄便座 シャワー 浴室1坪以上 独立洗面台 洗面台 三面鏡付き洗面化粧台 洗面所 洗髪洗面化粧台 室内洗濯機置場 洗濯機置場 システムキッチン ガスコンロ 給湯 食器洗浄乾燥機 エアコン 複層ガラス 収納スペース ウォークインクローゼット 地上デジタル放送 オートロック モニタ付インターホン フローリング バルコニー 日当り良好 内装リフォーム済 ペット対応
- 建物状況調査
(インスペクション)
- 備考
- バルコニー: あり 14.3㎡
主要採光面: 南向き
- 引渡可能時期
- 予定 2026年10月31日
- 現況
- 居住中
- 条件等
- 物件番号
- 73473691
- 情報公開日
- 2026/04/02
- 次回更新予定日
- 2026/05/01
この物件の周辺環境
- セブン-イレブン 宮崎大橋3丁目店
- ドラッグイレブン 宮崎大橋店
- 宮崎太陽銀行 大工町支店
- 宮崎市立小戸小学校
- 宮崎市立宮崎西中学校
情報提供会社
- 交通
- JR日豊本線 / 宮崎 徒歩 90分
- 住所
- 〒880-2112 宮崎県宮崎市大字小松1763-36
- TEL
- 0985-71-1548
- FAX
- 0985-71-1549
- 取引態様
- 専任媒介
- 免許番号
- 宮崎県知事免許(3) 第0004761号
- 所属協会
- (公社)全日本不動産協会
- 公正取引協議会
- 不動産公正取引協議会
賃貸住宅を借りるなら、物件検索サイト「ラビーネット不動産」で。賃貸マンション・賃貸アパート・賃貸一戸建ての物件情報を住みたいエリア/沿線・駅から検索し、賃料/間取り/駅からの徒歩といった希望条件で絞り込むことができます。このほか、物件の探し方から契約、引越、入居時の手続まで、お部屋探しに役立つ情報が満載。このサイトは全国組織の業界団体である公益社団法人全日本不動産協会が運営する不動産情報サイトのため、安心して物件をお探しいただけます。住まい探しのことならラビーネット不動産にお任せください!