我孫子市布佐平和台駅前マンションウイング D棟 4階
おすすめポイント♪新規リノベーション! ♪アフターサービス保証付!
- 価格
- 1,690万円
- 間取り
- 3LDK
- 専有面積
- 壁芯 71.26㎡
- 物件種目
- マンション
- 築年月
- 1982年8月(築43年8ヶ月)
- 建物構造
- 鉄骨鉄筋コンクリート
- 階建/階
- 11階建/4階
- 総戸数
- 133戸
- バルコニー
- あり 8.45㎡
- 管理費等
- 8,420円
- 敷金/保証金
- なし /
- 平米単価
- 修繕積立金
- 14,470円
- 借地期間
- 地代(月額)
- 権利金
- その他一時金
- 維持費等
- 組合費:300円(毎月)
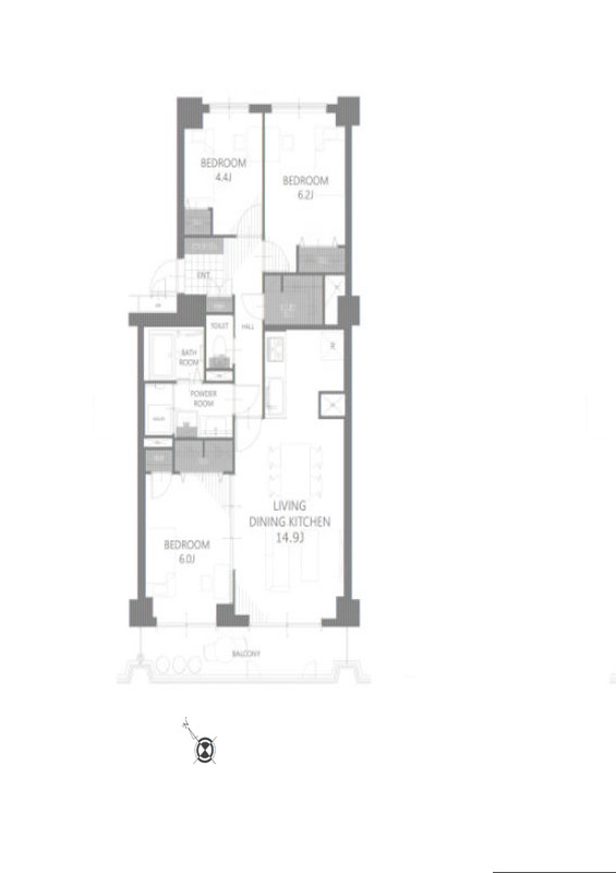
- 間取り(内訳)
- 洋室 6.2帖 洋室 6帖 洋室 4.4帖 LDK 14.9帖
- 建物名・部屋番号
- 我孫子市布佐平和台駅前マンションウイング D棟
- 駐車場
- 空きなし 4,000円/月
- 小学校
- 我孫子市立 布佐小学校(距離:1280m)
- 中学校
- 我孫子市立 布佐中学校(距離:1090m)
- 土地権利
- 所有権
- 敷地面積
- 管理形態・管理員の勤務形態
- 管理形態:全部委託
管理方式:日勤
管理会社:大成有楽不動産㈱
管理組合有:あり
- 国土法届出
- 設備
- 水道公営 都市ガス 排水下水 専用バス 専用トイレ バス・トイレ別 温水洗浄便座 シャワー 独立洗面台 洗面所 洗髪洗面化粧台 室内洗濯機置場 システムキッチン コンロ3口以上 ガスコンロ 給湯 浄水器 グリル 収納スペース ウォークインクローゼット シューズボックス 全室収納 BS端子 光ファイバー 地上デジタル放送 インターネット対応 防犯カメラ 火災警報器 フローリング エレベーター バルコニー 駐輪場 分譲タイプ リノベーション 内装リフォーム済 振分 5年以内に水回り設備交換 5年以内に内装リフォーム 敷地内ごみ置き場 24時間ゴミ出し可
- 建物状況調査
(インスペクション)
- 備考
- バルコニー: あり 8.45㎡
主要採光面: 南西向き
施工会社: 大成建設㈱ / 分譲会社:平和不動産㈱
♪キャンペーン対象物件!♪不動産売買仲介( ご購入・ご売却 )キャンペーン実施中!♪( ご購入 )キャンペーン概要 : 仲介手数料「 最大半額 」! 〖 弊社原則規定:仲介手数料( 税込 )( 低廉な空家等の媒介の特例時を除く ): 本体価格( 400万円超取引時 ): 本体価格 × 3.3% + 6.6万円 〗 ♪キャンペーンの期間や適用条件については、お気軽にお問合せください! ♪ご購入時やご売却時の諸手続等については、お気軽にお問合せください!〖 予約制内覧会開催中: 現地にスタッフは常駐しておりませんので、ご希望日時については、📧 お問合せ( 無料 )からお気軽にご連絡ください! 〗 ♪融資手続や賃貸管理のご質問等については、お気軽にお問合せください! ♪物件概要や共用部分のご確認等については、お気軽にお問合せください!〖 E-mail Form( 物件専用 ): 📧 お問合せ( 無料 )のフォームに必要事項をご入力の上 「 ① 確認画面へ → ② 送信する 」を押してください! 〗♪Contact Information! → Free_Call:0120-3664-09 ・ Telephone:03-3664-0909 ・ Facsimile:03-3664-2929 ・ E-mail:info@jp-le.com ・ LINE ID:@878jqfog ・ Official Web Site:https://www.jp-le.com/ ♪査定・売却・買取・賃貸・管理・修繕等については、お気軽にご相談ください! 補足( 駐車場:空き状況要確認・4,000円/月 )( 総戸数:A棟~D棟・446戸 )( 新規リノベーション物件:施工状況等要問い合せ )
- 引渡可能時期
- 即時
- 現況
- 空き
- 条件等
- 物件番号
- 73363921
- 情報公開日
- 2026/03/27
- 次回更新予定日
- 2026/04/30
情報提供会社
- 交通
- 東京メトロ日比谷線 / 小伝馬町 徒歩 2分
- 住所
- 〒103-0023 東京都中央区日本橋本町3丁目8-5日本橋本町松本ビル6階
- TEL
- 03-3664-0909
- FAX
- 03-3664-2929
- 取引態様
- 一般媒介
- 免許番号
- 東京都知事免許(5) 第0082996号
- 所属協会
- (公社)全日本不動産協会
- 公正取引協議会
- 不動産公正取引協議会
賃貸住宅を借りるなら、物件検索サイト「ラビーネット不動産」で。賃貸マンション・賃貸アパート・賃貸一戸建ての物件情報を住みたいエリア/沿線・駅から検索し、賃料/間取り/駅からの徒歩といった希望条件で絞り込むことができます。このほか、物件の探し方から契約、引越、入居時の手続まで、お部屋探しに役立つ情報が満載。このサイトは全国組織の業界団体である公益社団法人全日本不動産協会が運営する不動産情報サイトのため、安心して物件をお探しいただけます。住まい探しのことならラビーネット不動産にお任せください!